• Photo 1
  • Photo 3
  • Photo 4
  • Photo 6
  • Photo 8
  • Photo 9
  • Photo 11
  • Photo 5
  • Photo 10
  • Photo 7
  • Photo 13
  • Photo 14

Scroll Down

Sold STC Adelaide Road, West Ealing, London, W13 £799,950

3 Bedroom House  Sold STC £799,950

Adelaide Road, West Ealing, London, W13

3 Double Bedrooms

Opportunity To Extend

Almost 1500 Sq Ft With Loft

Private Rear Garden

Excellent Transport & Schools

Chain Free

EPC Rating C

Freehold

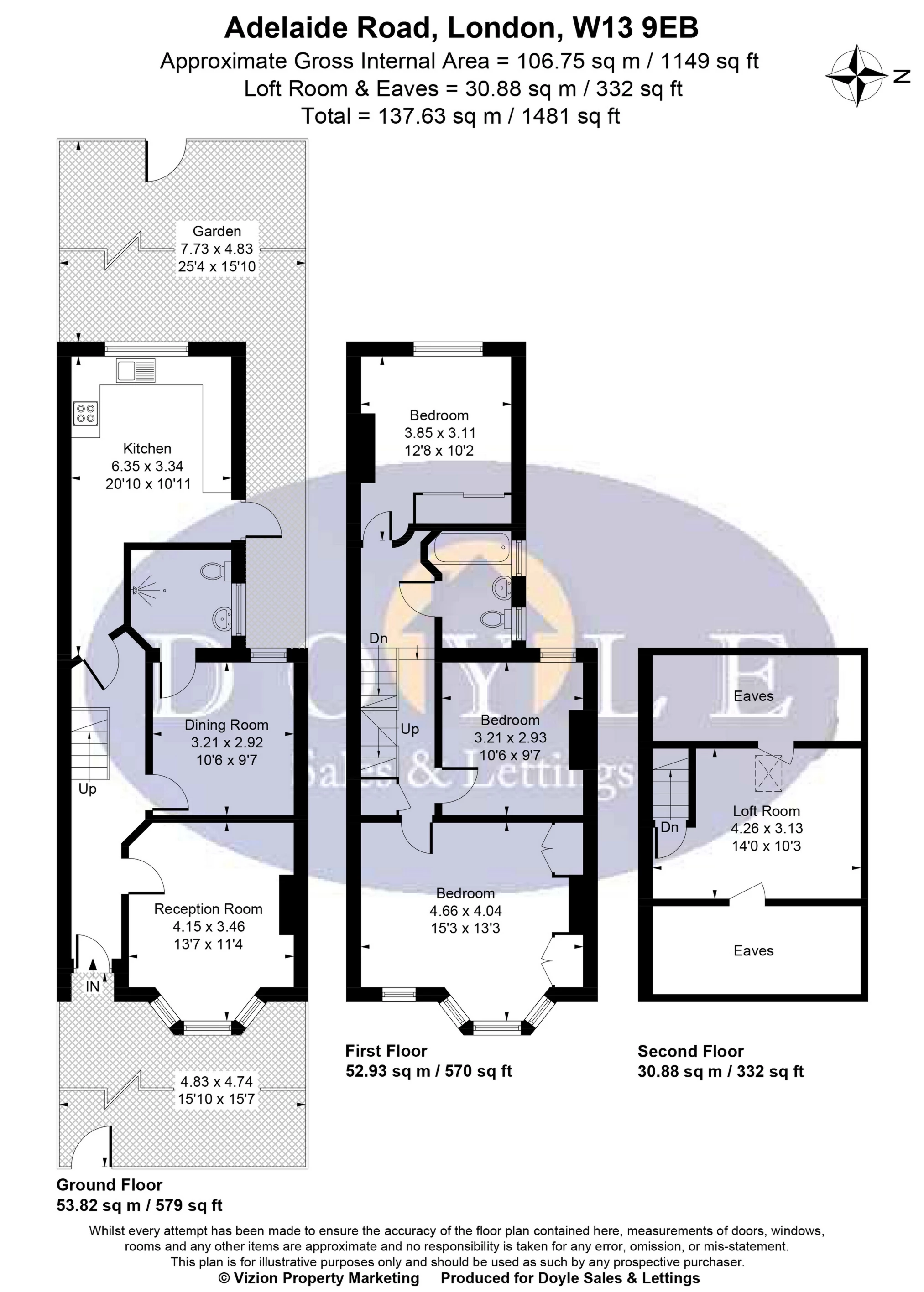
An attractive, chain free, 3 bedroom, family home, with an opportunity to extend close to West Ealing and Northfields. With almost 1,150 sq ft of accommodation this lovely property comprises, entrance hallway, bay fronted reception room, dining room, shower room and kitchen. Upstairs boasts 3 double bedrooms, family bathroom and stairs to a useful loft room with eaves storage. Further benefits include an opportunity to extend the loft and rear, chain free and front and rear gardens. Adelaide Road is a popular and perfect location for West Ealing (Elizabeth line) and Northfields (Piccadilly line) stations, outstanding schools including Fielding and Elthorne Park High, excellent parks, bus routes, road networks and shopping facilities.

EPC for Adelaide Road, West Ealing, London, W13

Energy
blank Current Potential

Location

Floor Plan

Floor Plan 1

Arrange a Viewing

Arrange a Viewing

This property is currently Sold STC. However, register your details below and we will contact you if it becomes available again.

Mortgage Calculator

Mortgage Details

Results

Stamp duty calculation

See full breakdown

Total SDLT due

Below is a breakdown of how the total amount of SDLT was calculated

Up to £0k (Percentage rate 0 %)

Above £0k and up to £0k (Percentage rate 0 %)

Above £0k and up to £0k (Percentage rate 0 %)

Above £0k and up to £0k (Percentage rate 0 %)

Above £0k and up to £0m (Percentage rate 0 %)

Above £om (Percentage rate 0 %)

Please note: This is for illustrative purposes only. The above calculator should not be relied upon when making financial decisions. Please seek advice from a specialist financial provider.

IMPORTANT NOTICE

Descriptions of the property are subjective and are used in good faith as an opinion and NOT as a statement of fact. Please make further specific enquires to ensure that our descriptions are likely to match any expectations you may have of the property. We have not tested any services, systems or appliances at this property. We strongly recommend that all the information we provide be verified by you on inspection, and by your Surveyor and Conveyancer.

Fees