• Photo 40
  • Photo 21
  • Photo 22
  • Photo 2
  • Photo 21

Scroll Down

Sold St Margarets Road, Hanwell, London, W7 Offers Over £800,000

3 Bedroom House  Sold Offers Over £800,000

St Margarets Road, Hanwell, London, W7

3 Bedrooms

Valuable Basement / Cellar

New Kitchen

Rear Access

Unrivalled Views

Popular Olde Hanwell

EPC Rating D

Freehold

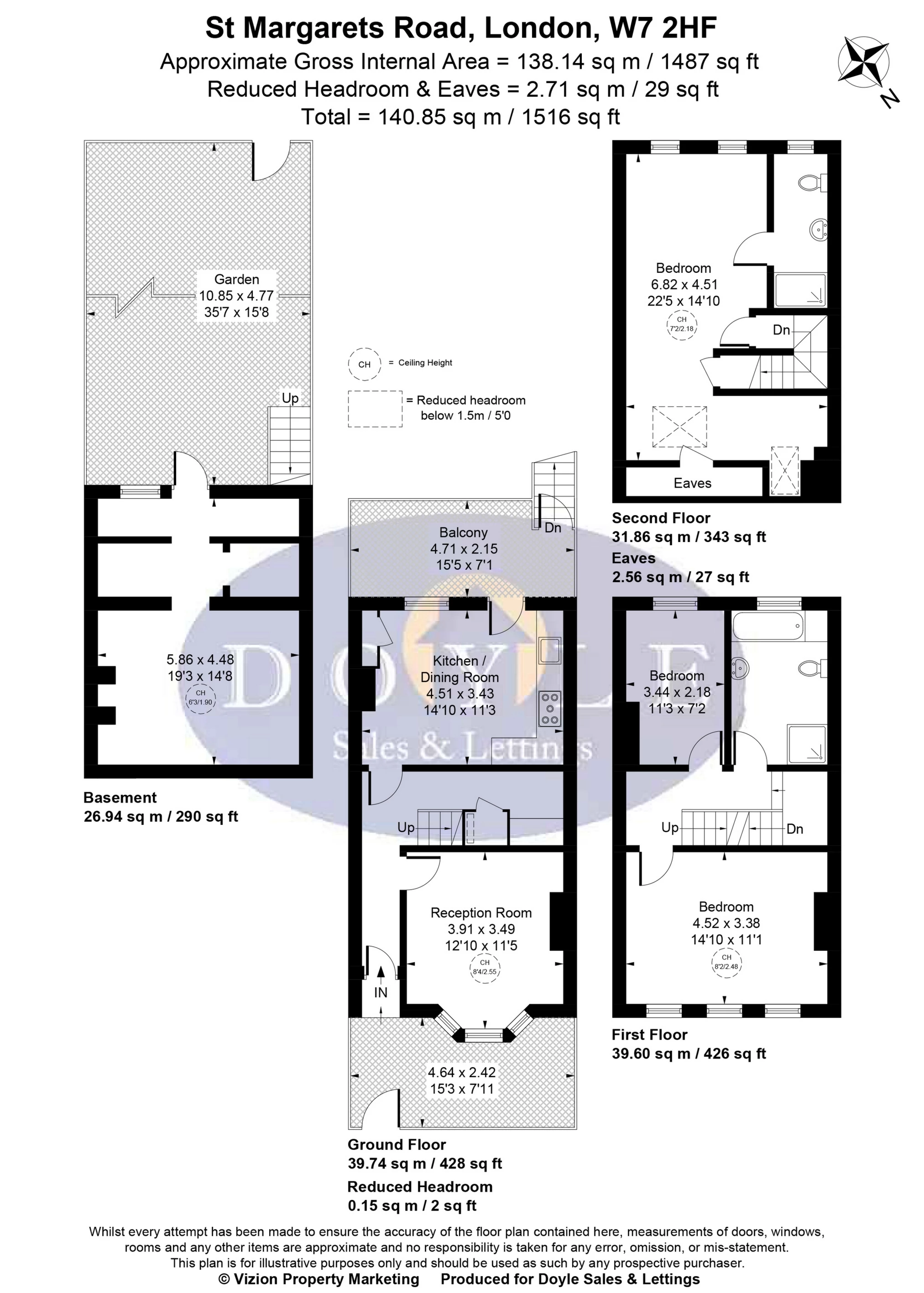
Sold For Asking Price - A rare find, is this elegant and beautifully presented, 3 double bedroom, family home, forming part of 'Pleasant View Cottages' overlooking the canal in popular Olde Hanwell. Accommodation on the ground floor comprises entrance hallway, bay fronted lounge, and spacious newly fitted eat in kitchen/diner with access to the terrace area. Upstairs, the first floor offers 2 double bedrooms and family bathroom with separate shower cubicle. The loft conversion hosts the spacious master bedroom with en suite shower room, eaves storage and views onto the canal. Further benefits include, large basement/cellar, private south west facing rear garden with rear access, front garden and period features. St Margarets Road is situated close to the Grand Union Canal, in a great school catchment area, within easy access to Hanwell station (Elizabeth line), Boston Manor station (Piccadilly line), road networks, bus routes, parks and shops.

EPC for St Margarets Road, Hanwell, London, W7

Energy
blank Current Potential

Location

Floor Plan

Floor Plan 2

Arrange a Viewing

Arrange a Viewing

This property is currently Sold. However, register your details below and we will contact you if it becomes available again.

Mortgage Calculator

Mortgage Details

Results

Stamp duty calculation

See full breakdown

Total SDLT due

Below is a breakdown of how the total amount of SDLT was calculated

Up to £0k (Percentage rate 0 %)

Above £0k and up to £0k (Percentage rate 0 %)

Above £0k and up to £0k (Percentage rate 0 %)

Above £0k and up to £0k (Percentage rate 0 %)

Above £0k and up to £0m (Percentage rate 0 %)

Above £om (Percentage rate 0 %)

Please note: This is for illustrative purposes only. The above calculator should not be relied upon when making financial decisions. Please seek advice from a specialist financial provider.

IMPORTANT NOTICE

Descriptions of the property are subjective and are used in good faith as an opinion and NOT as a statement of fact. Please make further specific enquires to ensure that our descriptions are likely to match any expectations you may have of the property. We have not tested any services, systems or appliances at this property. We strongly recommend that all the information we provide be verified by you on inspection, and by your Surveyor and Conveyancer.

Fees